コンセプト
     
   

【コンセプト】
高岡駅から徒歩約8分の好立地。
日当たりの良い広々としたバルコニーが特徴。

↑しばらくお待ちください。360度パノラマ映像が表示されます。
 
    

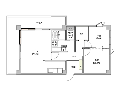
物件名:グランテラス駅南 101号室
住所: 高岡市駅南4丁目4-15
タイプ:2LDK


カラーテレビインタホーン
エアコン2台設置
ウォシュレット
インターネット無料

完成日:2025.11